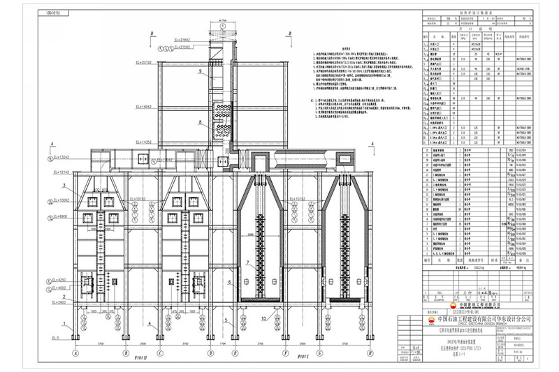
Petro China Liaoyang Petrochemical Unit 2.4mt/a Residue Oil Hydrogenation
Signed in April 2017, the project is a PC contract. The heating furnace design was developed by PetroChina East China Design Institute, and the Top Industrial Design Technology Center was responsible for the modular design of the factory.
Project Features:
The heating furnace tube of this unit is TP347H, with a diameter of 219.3 * 23.01. The normal operating pressure of the heating furnace is 17Mpa-18Mpa, which belongs to high-pressure hydrogenation.

